Villa a schiera in vendita

Sona, Via Domenico Scarlatti
€ 368.000
5 locali 5 locali
170 Mq 170 Mq
2 bagni 2 bagni

Villa a schiera in vendita

Sona, Via Domenico Scarlatti

Descrizione annuncio

SONA - Proponiamo in vendita una villa a schiera all'interno di un complesso residenziale e ben collegato ai principali servizi.

L'immobile, si sviluppa su quattro livelli di cui tre fuori terra e uno interrato offrendo ampi spazi ben distribuiti.

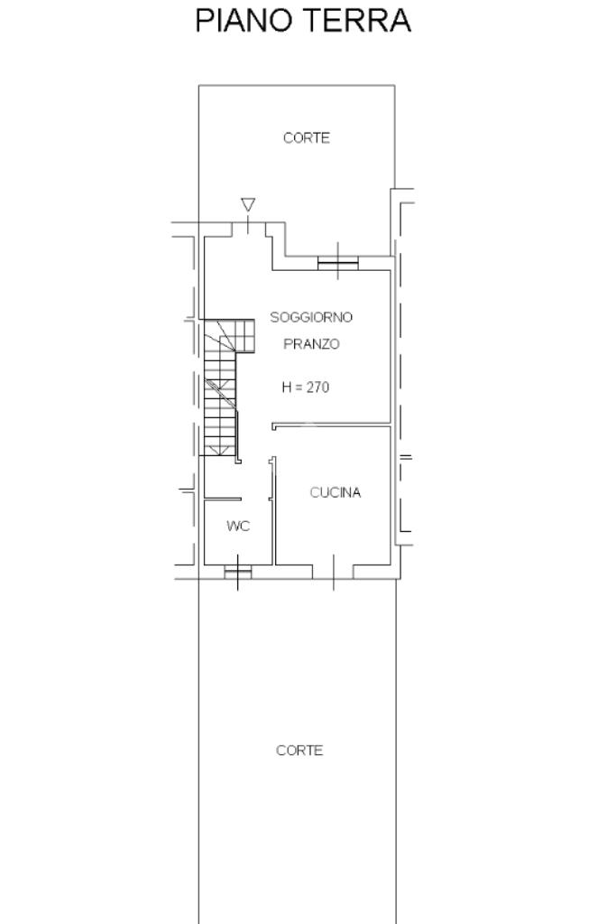
Al piano terra troviamo un ampio soggiorno, una luminosa cucina che si affaccia sul giardino privato perfetto per momenti di relax all'aperto e un pratico servizio finestrato.

La zona notte comprende tre camere da letto di cui due matrimoniali, una con accesso diretto al proprio balcone privato, una camera singola ideale anche come studio e un ulteriore servizio finestrato.

Salendo all'ultimo piano, è presente un ampia mansarda da abidire in base alle proprie esigenze, ottima come ulteriore camera da letto o sala hobby. Sono presenti inoltre le predisposizioni per un bagno.

Completà la proprietà il piano interrato composto da una taverna con camino a vista, una lavanderia ed un box doppio.

L'immobile è dotato di aria condizionata, assicurando un ambiente confortevole in ogni stagione. Questa villa rappresenta una soluzione abitativa di qualità, in una zona tranquilla e ben servita.

Libera da subito.

Mostra tutto

Nelle vicinanze

Trasporto pubblico Trasporto pubblico
Platano
Platano
2,5 Km
Scuole Scuole
Istituto Comprensivo statale di Sona
400 m
Scuole
440 m
Farmacia Farmacia
Farmacia
690 m
Negozi Negozi
Negozi
3,0 Km
Bar Bar
El Bareto
720 m
Ristop
2,0 Km
Mychef
2,1 Km
Bar
3,0 Km
Ristoranti Ristoranti
Osteria San Quirico
270 m
Pizzeria dai Beghini
710 m
El Bagolo
710 m
Pizzeria Amabile
940 m
Ca Fileno
1,7 Km
Mostra tutto

Caratteristiche

Rif.:
61199261
Piano:
3 di 3 (Piano su più livelli)
Box:
1
Posti auto:
2
Balconi:
2
Camere da letto:
3
Mostra tutto
Prezzo Prezzo
€ 368.000
Rata mutuo Rata mutuo
€ 1.755 / mese
Proponi il tuo prezzoProponi il tuo prezzo
Immobile valutato con T·Valuta

Classe Energetica

D
D
D
D
D
D
D
D
D
EP invernale del fabbricato:
EP estiva del fabbricato:
Anno di costruzione:
2007
Riscaldamento:
Autonomo
Tipo impianto:
A radiatori
Tipo alimentazione:
Metano

Ti interessa visionare l'immobile?

Fissa un appuntamento  Fissa un appuntamento

Richiedi informazioni

Clicca su Leggi per aprire l'informativa
* Questi campi sono obbligatori

Calcola il tuo mutuo

Semplice e senza impegno
Anticipo

( % )
Mutuo

( % )

pochi semplici passi

inserisci i tuoi dati
Questionario completato
Grazie per aver richiesto un appuntamento senza impegno con un nostro Consulente del Credito e Assicurativo.

Hai inserito correttamente tutti i dati necessari e a breve riceverai una e-mail con un link da convalidare per inviare i tuoi dati.
Affiliato
Nuovo Feudo Sas
Via San Francesco, 14 37060 Sona (VR)

Il nostro staff


  • Roberto Cosaro
    Affiliato

  • Francesco Bailoni
    Collaboratore

  • Andrea Ciresola
    Collaboratore

  • Alexandro Di Caterina
    Responsabile

  • Riccardo Aliano
    Collaboratore

  • Alessia Oliosi
    Coordinatrice

  • Erika Masotto
    Collaboratrice
Via San Francesco, 14 37060 Sona (VR)
Zona: Sommacampagna - Caselle - Custoza - Sona - Lugagnano - S. Giorgio in Salici - Palazzolo
Mostra su mappa
Orari: Lunedi-venerdì 9.00- 12.30/14.30 -19.00. Sabato 9.00/12.30
Affiliato
Nuovo Feudo Sas
Via San Francesco, 14 37060 Sona (VR)

2026 Tecnocasa Franchising S.p.A. - P. IVA 08365160152 - Via Monte Bianco 60/A 20089 Rozzano (MI). Ogni agenzia ha un proprio titolare ed è autonoma. Privacy policy | Policy utilizzo | Cookie policy